Фасадная система для крепления облицовочных плит на закладных элементах
Фасадная система для крепления облицовочных плит на закладных элементах
Артикул: 18.38.007
Цена за шт:
2 900 руб.
Рассказать друзьям
|
Материал системы: |
Алюминиевый сплав 6060 (Т66), 6063 (Т6), 6063 (Т66), 6060 (Т6), по ГОСТ 22233-2018 |
|
Класс пожароопасности: |
К0 |
|
Сейсмостойкость: |
До 9 баллов |
|
Материалы облицовки: |
Керамический гранит, натуральный камень, стеклофибробетон (СФБ), стеклокомпозит, архитектурный и искусственный камень, композит с натуральным камнем или стеклом, агломератно-гранитный композит (агломерат) |
|
Максимально разрешенные размеры облицовки: |
Плиты из натурального камня: 1500х1500мм (20-50мм толщиной, прочные породы; 30-50мм толщиной, среднепрочные породы) Плиты из стеклофибробетона: 4500х3500мм (10-30мм толщиной) Плиты фибробетонные: 1200x600mm (30-80мм толщиной) |
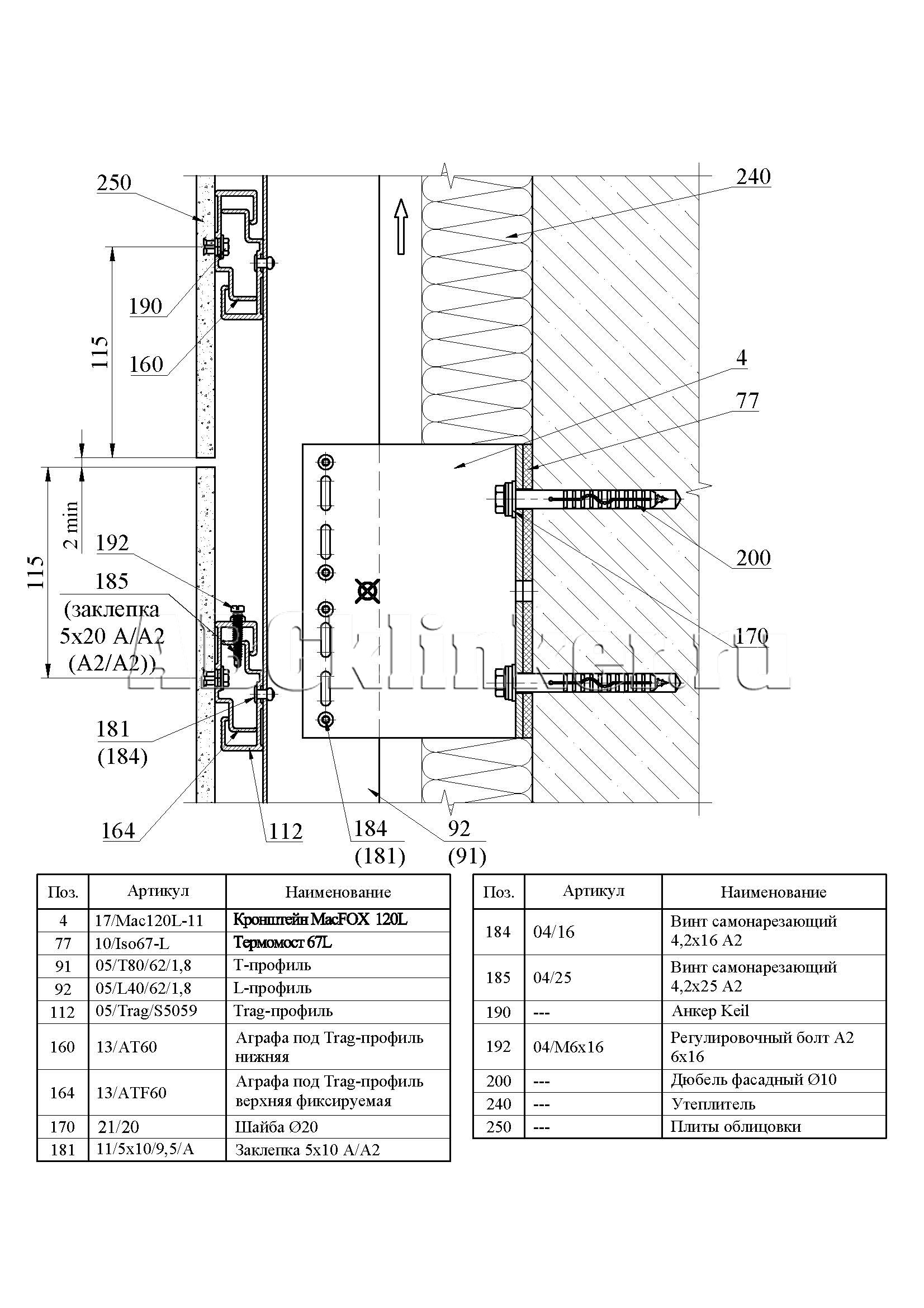
| Тип крепления облицовки: | Скрытый. На анкерных элементах, аграфах и TRAG-профиле, с возможностью регулировки |
|
Тип крепления к строительному основанию: |
К стене / в перекрытие |
|
Крепление к потолкам: |
Допускается |
|
Крепление во внутренних помещениях: |
Допускается |
Параметры
- Артикул:
- 18.38.007
- Страна производства:
- Россия
Технологические хар-ки
- Способ крепления:
- скрытый
- Область применения плит:
- Стены прямые и с уклоном / Фасад
Загрузка комментариев...
Наличие
-
телефон: 8 (915) 390 99 22график работы: Пн.-Пт. с 9:00 до 17:00описание: центральный склад продукции ABC-klinkergruppe в России.Мало
ABC-KlinkerGruppe 





