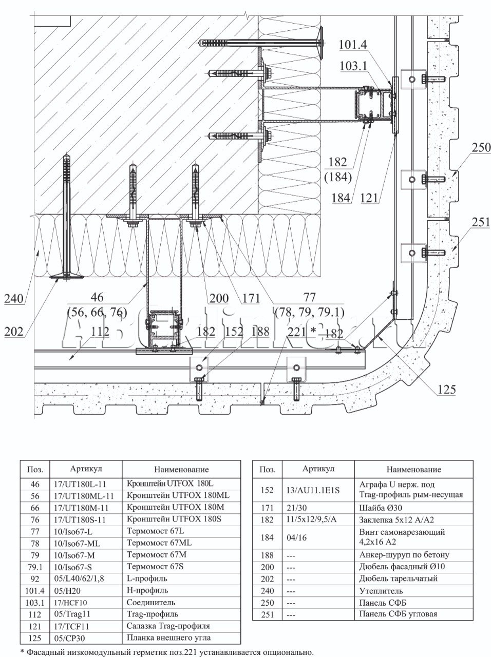
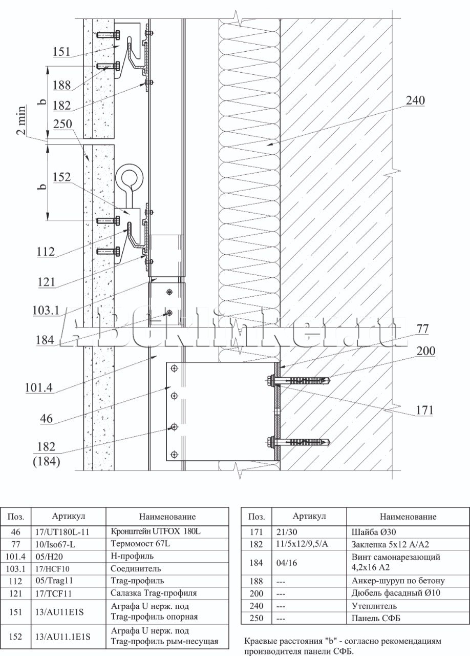
Фасадная система для крепления крупноформатных облицовочных плит массой до 250 кг/м2
Фасадная система для крепления крупноформатных облицовочных плит массой до 250 кг/м2 Фасадная система для крепления крупноформатных облицовочных плит массой до 250 кг/м2 Фасадная система для крепления крупноформатных облицовочных плит массой до 250 кг/м2 Фасадная система для крепления крупноформатных облицовочных плит массой до 250 кг/м2 Фасадная система для крепления крупноформатных облицовочных плит массой до 250 кг/м2 Фасадная система для крепления крупноформатных облицовочных плит массой до 250 кг/м2 Фасадная система для крепления крупноформатных облицовочных плит массой до 250 кг/м2 Фасадная система для крепления крупноформатных облицовочных плит массой до 250 кг/м2 Фасадная система для крепления крупноформатных облицовочных плит массой до 250 кг/м2
Рассказать друзьям

Фасадная система для крепления крупноформатных облицовочных плит массой до 250 кг/м2

Артикул: 18.38.012
Цена за шт:
2 900 руб.
на сумму: 2 900 руб.
Рассказать друзьям
Материал системы:
Алюминиевый сплав 6060 (Т66), 6063 (Т6), 6063 (Т66), 6060 (Т6), по ГОСТ 22233-2018, коррозионностойкая сталь AISI304, AISI201, AISI430
Класс пожароопасности:

К0

Сейсмостойкость:

До 9 баллов

Материалы облицовки:

Стеклофибробетон (СФБ), архитектурный и искусственный камень
Максимально разрешенные размеры облицовки:

Плиты из стеклофибробетона:
5200х3500мм 
Натуральный камень:
1500x1500mm
Тип крепления облицовки: Скрытый. На планках и аграфах
Тип крепления к строительному основанию:

К стене / в перекрытие

Крепление к потолкам:

Допускается

Крепление во внутренних помещениях:

Допускается


Параметры
Артикул:
18.38.012
Страна производства:
Россия
Технологические хар-ки
Способ крепления:
скрытый
Область применения плит:
Стены прямые и с уклоном / Фасад
Загрузка комментариев...

Наличие

Мой город
8-915-390-99-22
Пн-Пт  09:00-18:00
Пятигорск