Bonn-Beuel специализированный центр с треугольной клинкерной плиткой на фасаде

Bonn-Beuel специализированный  центр с треугольной клинкерной плиткой на фасаде

Треугольная фасадная плитка с металлическим блеском.

  • Оживленная деловая жизнь, зеленые улицы с преимущественной застройкой по периметру блока Gründerzeit с ухоженными фасадами характеризуют район Bonn-Beuel. Недавно построенный специализированный центр с "городским балконом" увеличило открытое пространство с частичным гастрономическим использованием, место теперь значительно улучшилось в качестве посещения. Планирование объекта вели из кельнского офиса Bob-Architektur, который стал победителем из ранее объявленного конкурса. 
  • Архитекторы спроектировали три здания разных размеров и форм, которые занимают место и вступают в диалог с существующей структурой. Ансамбль предлагает пространство для 15 медицинских отделений и различных медицинских услуг. На первом этаже магазины, кафе и рестораны оживляют клиновидную площадь, которая на северо-востоке граничит с защелкой в ​​форме здания ратуши, а на юге - с четырьмя жилыми домами. Эта фрагментарная разработка периметрального блока была завершена новым главным зданием с жилым и офисным использованием. Его пропорции основаны на исторических жилых зданиях, его плиточный фасад является посредником между существующим и самым большим из трех новых зданий, фактическим медицинским центром.
  • К северу от улицы Святого Августина пятиэтажный медицинский центр выглядит как большой бар, фактически он поднимается с первого этажа на почти треугольный план этажа, западная оконечность была «закрыта». В этот момент здание открывается полностью застекленным фасадом в городское пространство. Далеко позади первого этажа отмечен вход в супермаркет, который также занимает площадь под городским балконом. Один этаж внизу находится подземная автостоянка. Третье новое здание - одноэтажный павильон. Он расположен рядом с ратушей в восточном углу площади и заметно выделяется из двух других зданий своим фасадом из стального стекла. Однако сердцем строительного комплекса является городской балкон между головным зданием и медицинским центром. 

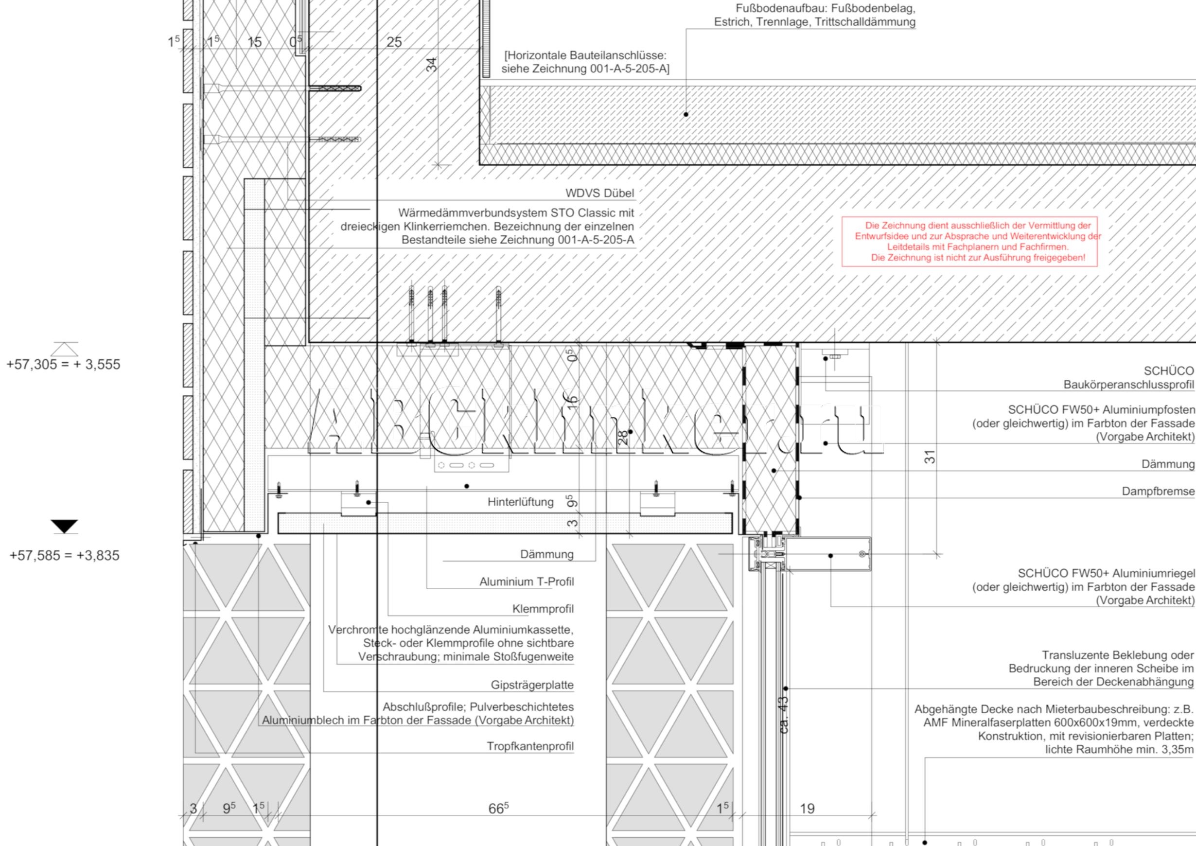
  • Хотя объемы двух западных зданий относятся к существующей структуре, их фасадный дизайн создает четкий и современный контраст. Они целиком покрыты керамической плиткой в ​​виде равнобедренных треугольников. Использовались два слегка отличающихся формата: остроконечный треугольник, чередующийся на основании или точке для образования ромба, и более плоский треугольник, два из которых образуют квадрат или параллелограмм. Таким образом, крупные фасады могут быть структурированы и, например, визуально подчеркнута система маршрутизации.

  • В общей сложности было изготовлено 340 000 плиток с длиной кромки 13 см в виде ячеистых элементов, которые были сломаны вручную и приклеены по отдельности к внешней системе теплоизоляции . Конструкция однослойной стены состоит из: железобетона 250 мм, минеральной изоляции 180 мм, армирующего раствора 10 мм со стеклотканью, плитки 10 мм. Их мерцающая металлическая поверхность меняется в зависимости от света, падающего между серебристо-серым, розовым, бирюзовым и темно-серым. Вместе они обеспечивают однородный вид квадратной застройки со стороны Рейна и дают ему ослепительную игру цветов в качестве выразительного эффекта, так как это подходящее место для экспозиции.
Разработка уникальной клинкерной плитки по спец заказу является важным этапом при создании дорогих архитектурных объектов. Клинкерная плитка – это материал, который отличается прочностью, долговечностью, устойчивостью к воздействию различных факторов окружающей среды, а также эстетичным внешним видом. Поэтому ее выбирают для отделки фасадов статусных объектов.

Однако, когда речь идет о дорогих архитектурных объектах, часто требуется нестандартная, уникальная клинкерная плитка, которая бы соответствовала всем особенностям проекта. Разработка такой плитки происходит по специальному заказу, и включает в себя несколько этапов. Первый этап – это консультация с клиентом, в рамках которой выясняются все требования к будущей плитке. На этом этапе определяются не только внешние параметры, такие как размер, формат, свойства цвета, фактура, но и такие важные параметры как характеристики, способ монтажа. На следующем этапе разработки создается образцы будущей клинкерной плитки, который затем согласовывают с заказчиком. При необходимости образец дорабатывается до получения оптимального результата. После согласования образца клинкерной плитки на объекте, начинается производство партии спецзаказа. 

Таким образом, разработка уникальной клинкерной плитки по спец заказу – это сложный процесс, который требует много времени и профессионального подхода. Однако результатом является уникальный дизайн материала, который идеально соответствует требованиям проекта и создает неповторимый облик архитектурного объекта.

Реализация:

  Архитектура:       bob-architektur, Köln                              www.koe-architekten.de
  Заказчик:             FAZ Konrad-Adenauer-Platz, Bonn
  Реализация:        2007-2016 г.
  Расположение:   Konrad-Adenauer-Platz 28, 53225 Bonn

Материал:

  Фасад:                 Клинкерная плитка треугольная с металлическим блеском
  Площадь:           11 500 м2
  Кол-во:               340 000 шт. треугольной клинкерной плитки

Рассказать друзьям
Мой город
8-915-390-99-22
Пн-Пт  09:00-18:00
Тула